Models > River Bend >

River Bend

River Bend
River BendRiver BendRiver BendRiver BendRiver Bend

Specs

ground level:
width:34' 0"
depth:36' 0"
square feet:1,072
second level:
width:34' 0"
depth:36' 0"
square feet:930

total square feet

2,000

Pricing

Square Log Homes
Home Builders Kit: Under review
Complete Kit: Under review
Deluxe Kit: Under review
Timber Homes
Package "A": Under review
Package "B": Under review

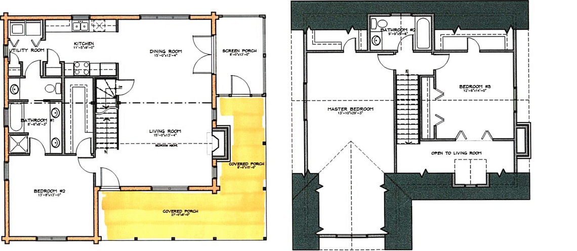
Classy and elegant, probably what one would think of first in imagining a country home. A little bit of everything for everyone to enjoy. All the bedrooms on the view side of the home which also sports the classic "L" shaped porch.

Floor Plan

River Bend Floor Plan
Outaouais Log Homes Find a Model Hme
Outaouais Log Homes How does it work
Outaouais Log Homes Call us now
arrow

Come visit us!

arrow

Privacy policy

By agreeing to share certain navigation information with us, you are helping us to improve and offer you an optimal browsing experience. Thank you for your support!

Activate the categories you want to share, thanks for your help!

  • Google Analytics (gtm)
  • Hotjar (gtm)
  • None for the moment
  • Google Analytics (gtm)
  • Facebook Pixel
  • Google Ads
  • Google Ads Conversion