Models > Papa Bear >

Papa Bear

Papa Bear
Papa BearPapa BearPapa BearPapa BearPapa BearPapa BearPapa BearPapa BearPapa BearPapa BearPapa BearPapa BearPapa BearPapa BearPapa BearPapa BearPapa BearPapa BearPapa Bear

Specs

ground level:
width:66' 0"
depth:36' 0"
square feet:1,914
second level:
width:66' 0"
depth:36' 0"
square feet:1,930
garage:
square feet:462

total square feet

4,300

Pricing

Square Log Homes
Home Builders Kit: Under review
Complete Kit: Under review
Deluxe Kit: Under review

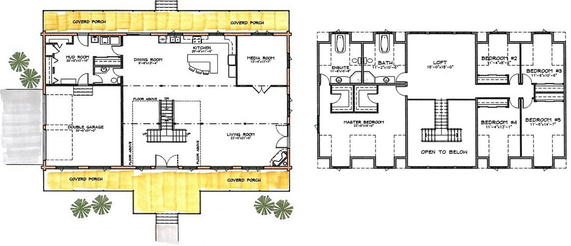
The name says a lot for this model. Large imposing gambrel style roof and front gable give way to a vast cathedral and staircase fit for a wedding. Open spaces accompany the large amount of post and beam structure to give the Papa Bear an impressive look and charm. Ideal for a large family having all the bedrooms on the same floor yet separated by a loft from the master bedroom and master suite.

Floor Plan

Papa Bear Floor Plan
Outaouais Log Homes Find a Model Hme
Outaouais Log Homes How does it work
Outaouais Log Homes Call us now
arrow

Come visit us!

arrow

Privacy policy

By agreeing to share certain navigation information with us, you are helping us to improve and offer you an optimal browsing experience. Thank you for your support!

Activate the categories you want to share, thanks for your help!

  • Google Analytics (gtm)
  • Hotjar (gtm)
  • None for the moment
  • Google Analytics (gtm)
  • Facebook Pixel
  • Google Ads
  • Google Ads Conversion