Models > Northern Woods >

Northern Woods

Northern Woods
Northern WoodsNorthern WoodsNorthern WoodsNorthern Woods

Specs

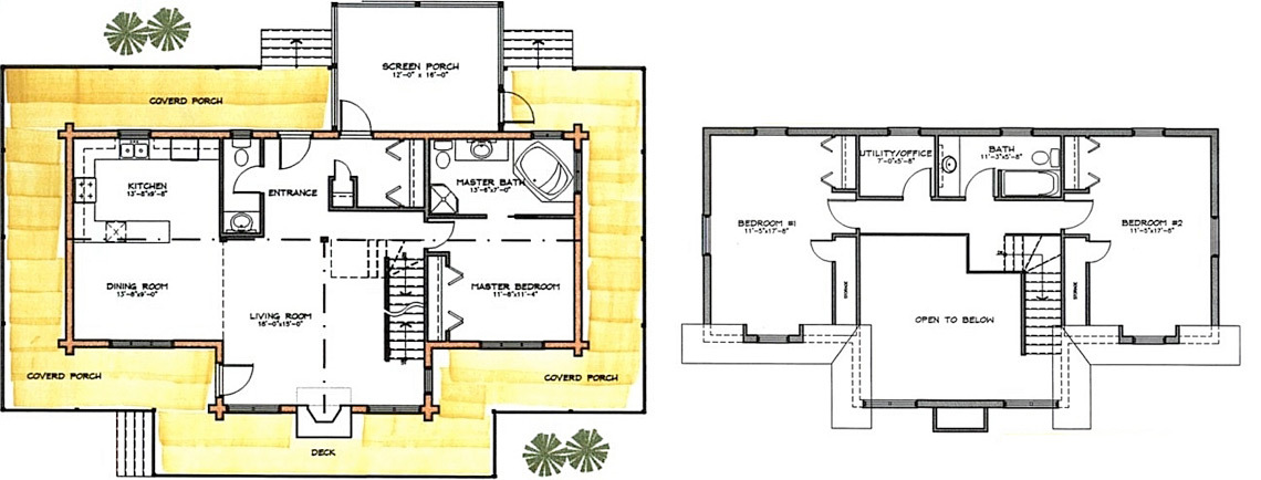
ground level:
width:48' 0"
depth:26' 0"
square feet:1,080
second level:
width:48' 0"
depth:26' 0"
square feet:740

total square feet

1,820

Pricing

Square Log Homes
Home Builders Kit: Under review
Complete Kit: Under review
Deluxe Kit: Under review
Timber Homes
Package "A": Under review
Package "B": Under review

Imposing for its size the Northern woods has many dimensions to it. It looks great from any angle, really what could you want more? The fireplace is the centerpiece to the open concept and tall cathedral. Three great sized bedrooms tucked away nicely with 2 ½ bathrooms close by. Not to mentions the wrap around porch and screened in porch to enjoy the outdoors under protection.

Floor Plan

Northern Woods Floor Plan
Outaouais Log Homes Find a Model Hme
Outaouais Log Homes How does it work
Outaouais Log Homes Call us now
arrow

Come visit us!

arrow

Privacy policy

By agreeing to share certain navigation information with us, you are helping us to improve and offer you an optimal browsing experience. Thank you for your support!

Activate the categories you want to share, thanks for your help!

  • Google Analytics (gtm)
  • Hotjar (gtm)
  • None for the moment
  • Google Analytics (gtm)
  • Facebook Pixel
  • Google Ads
  • Google Ads Conversion