Models > Enchanted Forest I >

Enchanted Forest I

Enchanted Forest I
Enchanted Forest IEnchanted Forest IEnchanted Forest IEnchanted Forest IEnchanted Forest IEnchanted Forest IEnchanted Forest IEnchanted Forest I

Specs

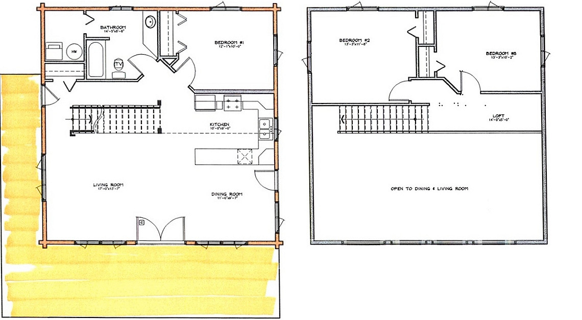
ground level:
width:30' 0"
depth:30' 0"
square feet:900
second level:
width:30' 0"
depth:30' 0"
square feet:425

total square feet

1,325

Pricing

Square Log Homes
Home Builders Kit: Under review
Complete Kit: Under review
Deluxe Kit: Under review
Timber Homes
Package "A": Under review
Package "B": Under review

Open spaces and high cathedral ceilings are a breath of fresh air in this model. Keeping the breathtaking view and openness to the front for enjoyment and entertaining. All the more private rooms are situated at the rear and in the loft. Lots of space for family and friends to enjoy.

Floor Plan

Enchanted Forest I Floor Plan
Outaouais Log Homes Find a Model Hme
Outaouais Log Homes How does it work
Outaouais Log Homes Call us now
arrow

Come visit us!

arrow

Privacy policy

By agreeing to share certain navigation information with us, you are helping us to improve and offer you an optimal browsing experience. Thank you for your support!

Activate the categories you want to share, thanks for your help!

  • Google Analytics (gtm)
  • Hotjar (gtm)
  • None for the moment
  • Google Analytics (gtm)
  • Facebook Pixel
  • Google Ads
  • Google Ads Conversion