Models > Alpine >

Alpine

Alpine
AlpineAlpineAlpineAlpineAlpineAlpineAlpineAlpineAlpine

Specs

ground level:
width:24' 0"
depth:28' 0"
square feet:625
second level:
width:24' 0"
depth:28' 0"
square feet:625

total square feet

1,250

Pricing

Square Log Homes
Home Builders Kit: Under review
Complete Kit: Under review
Deluxe Kit: Under review
Timber Homes
Package "A": Under review
Package "B": Under review

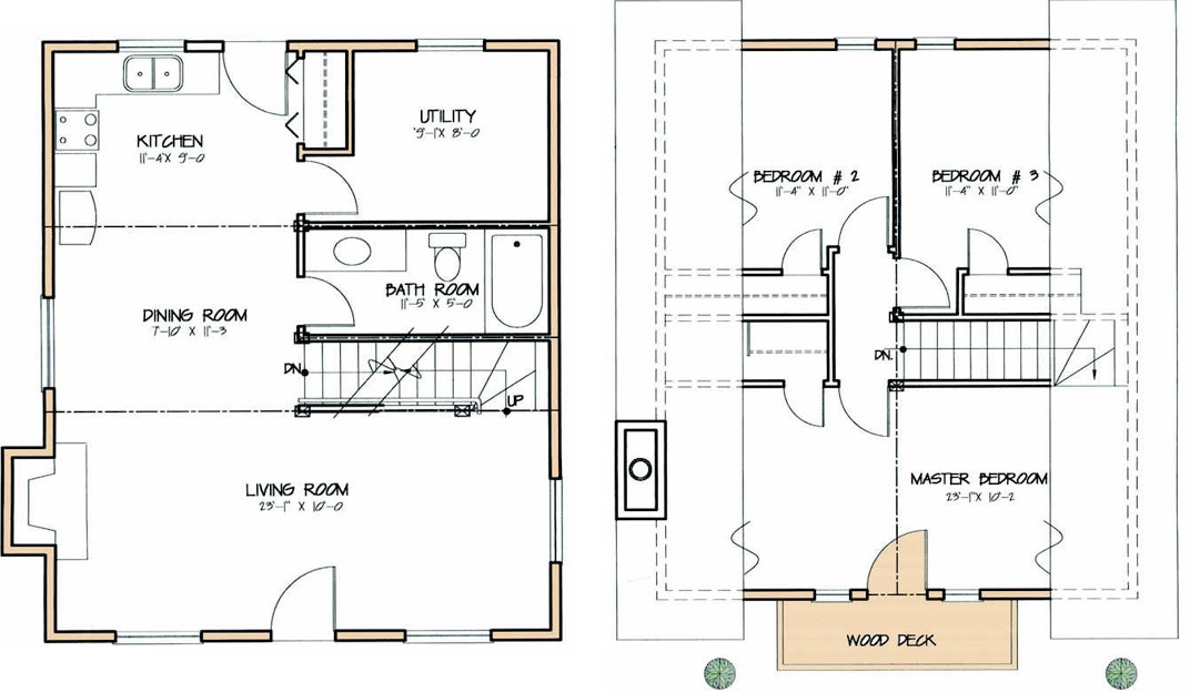
This home maximises all the living spaces to accommodate everyone with 3 bedrooms on the top floor and the living space plus storage on the open concept main floor. Post and beam system spanning the entire ceiling of the main floor gives it character and warmths.

Floor Plan

Alpine Floor Plan
Outaouais Log Homes Find a Model Hme
Outaouais Log Homes How does it work
Outaouais Log Homes Call us now
arrow

Come visit us!

arrow

Privacy policy

By agreeing to share certain navigation information with us, you are helping us to improve and offer you an optimal browsing experience. Thank you for your support!

Activate the categories you want to share, thanks for your help!

  • Google Analytics (gtm)
  • Hotjar (gtm)
  • None for the moment
  • Google Analytics (gtm)
  • Facebook Pixel
  • Google Ads
  • Google Ads Conversion